Taller-Estudio de fotografía

Proyecto ganador en los premios BIG SEE award 2026 y OPAL Award 2025.

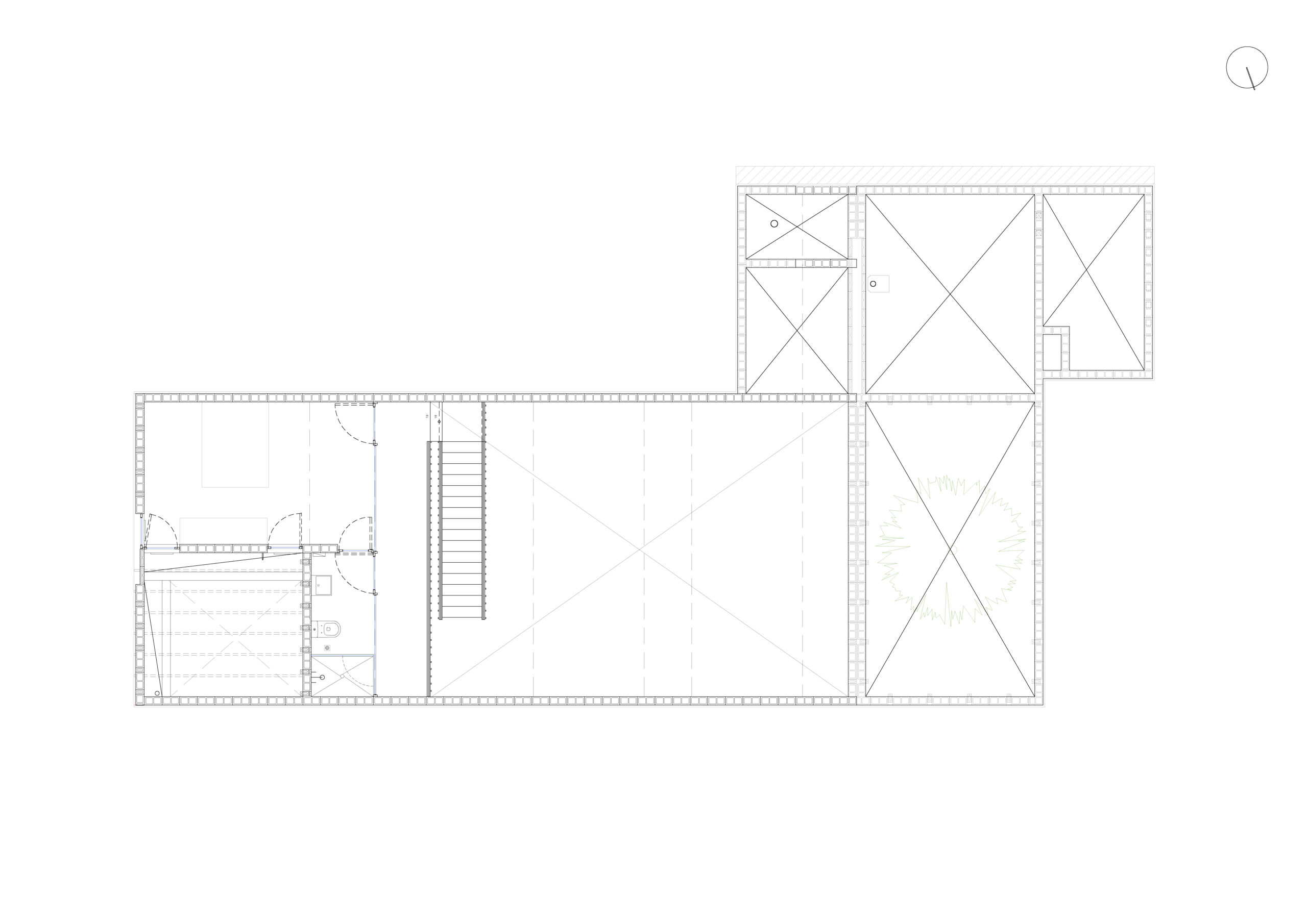
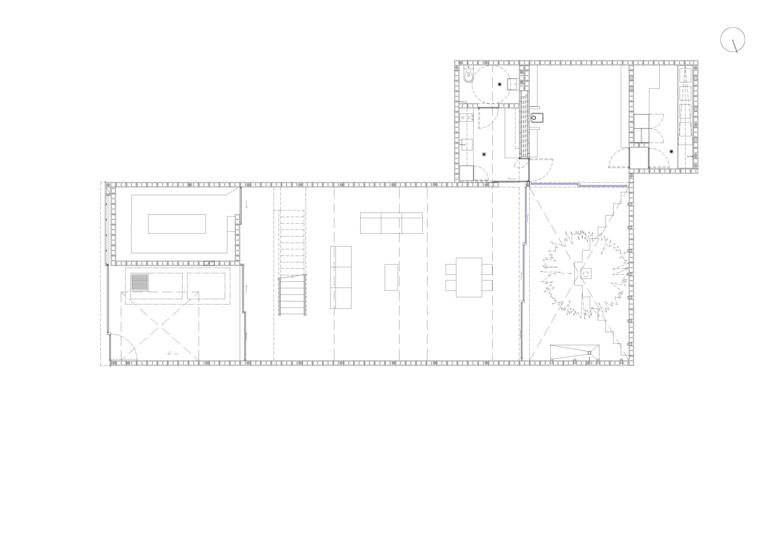
Desde el acceso se ingresa por un primer patio con jardineras voladas que conduce a un amplio espacio central de trabajo. Con el uso de puertas corredizas que pueden ocultarse, este gran ambiente se convierte en un espacio continuo, conectado tanto con el patio de ingreso como con el posterior. El programa incluye también un kitchenette y dos salas más pequeñas que funcionan como áreas de escritorio o, si se requiere, como dormitorio temporal para artistas en residencia. Los únicos espacios cerrados son los baños y un cuarto oscuro destinado al revelado de fotografía analógica.

La estructura combina muros perimetrales de bloques de concreto armado arriostrados por grandes tijerales y una cubierta de madera. Esta cubierta se pliega y desciende progresivamente en altura desde la oficina del segundo piso hacia el patio posterior del primer nivel. En su recorrido se abren cuatro tragaluces rectangulares conformados por los tijerales, que no solo aportan luz cenital durante todo el día, sino que también permiten ventilación cruzada hacia los patios gracias a sus ventanas superiores manipuladas por poleas. Estos elementos evocan a los tragaluces, farolas y teatinas de las casonas patrimoniales de Barranco, que históricamente han resuelto la iluminación y ventilación natural en la zona.

La madera de huayruro está presente en toda la carpintería: desde la cubierta y las mamparas hasta los portones, muebles y la escalera que conduce al segundo nivel. Los muros de bloques de concreto se muestran lisos en el interior, mientras que en los patios adquieren un relieve que permite integrar luminarias escondidas o servir de soporte a futuras enredaderas. En el primer nivel, el piso está revestido con baldosas artesanales de terrazo amarillo que se extienden de manera continua hasta el patio posterior, donde concluyen en una jardinera formada por celosías de concreto. Allí se ha sembrado un ceibo como árbol central, que será acompañado de cactus y suculentas para completar el carácter del espacio.

Colaboradores: Arq. Alexandra Larrea, Arq. Ailed Tejada, Arq. Lilian Wong, Arq. Karen Galarza.

AÑO:

2025

AREA:

189 m2

UBICACIÓN:

Barranco, Lima. Perú

Ing. Estructural:

Ing. Jorge Avendaño

Consultor madera:

Arq. Luis Takahashi

Ing. Eléctrico

Ing. César Pacheco

Ing. Sanitario

Ing. Julio Gamboa

Constructor:

Caguila Constructores

Supervisión diseño en obra:

Arq. Alexandra Larrea, Arq. Lilian Wong.

Fotos:

Juan Solano.