PABELLÓN Y MEDIO EN MONTERREY

Proyecto de ampliación en una vivienda unifamiliar ubicada en San Pedro de Garza García en Monterrey, México.

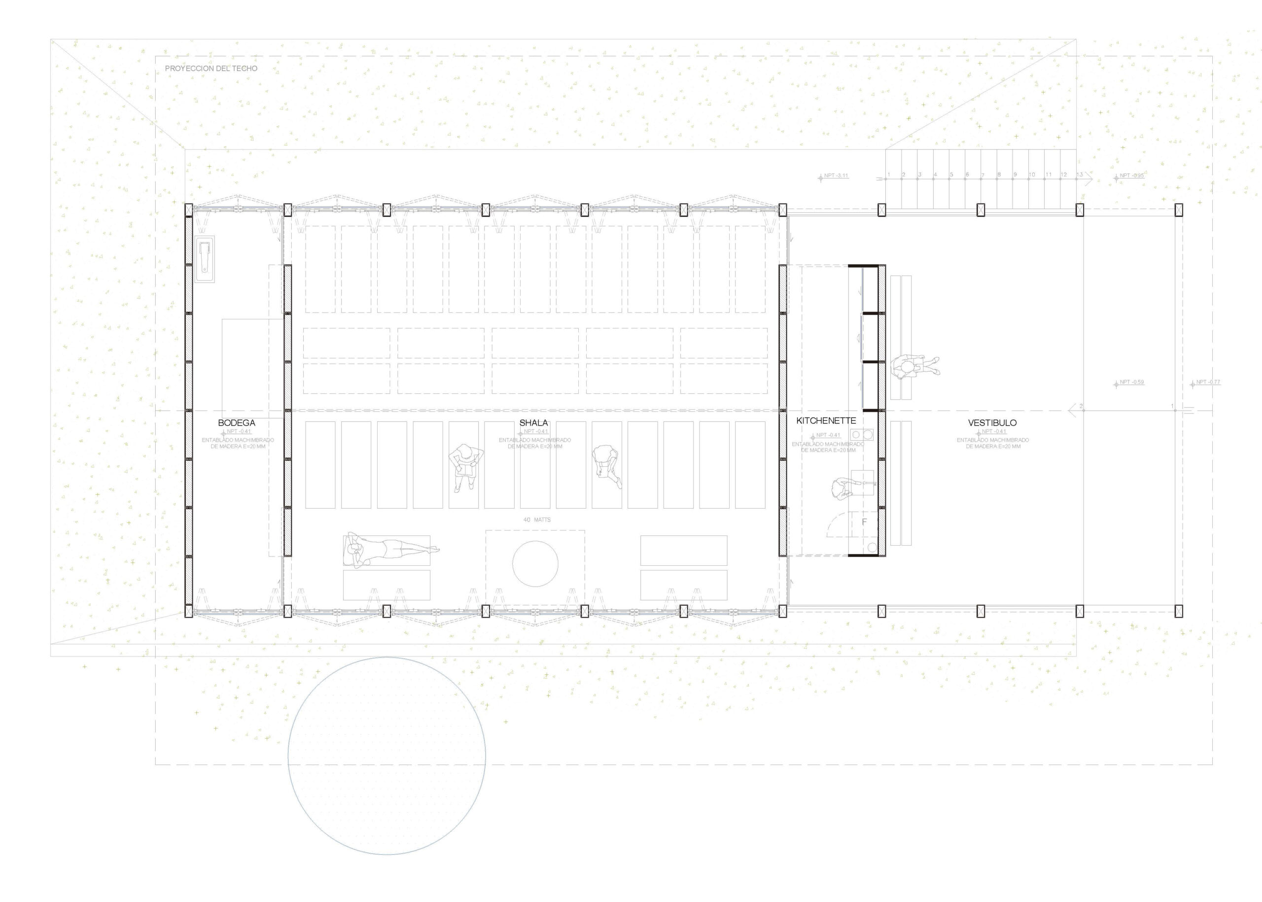
Como parte del encargo para la ampliación en un terreno previamente ocupado por dos viviendas unifamiliares que comparten un amplio jardín posterior, se propuso la incorporación de un nuevo pabellón de estructura de madera destinado a albergar una gran sala de reunión y meditación. A este se suma una segunda edificación de menor escala , concebida como la mitad de la estructura principal, que funciona como una vivienda auxiliar para huéspedes.

El pabellón principal se organiza bajo un amplio techo a dos aguas que se adapta sutilmente a la curvatura de las copas de los árboles existentes, estableciendo una relación fluida con el entorno natural. La cubierta, resuelta como un sistema de vigas de madera horizontales conectadas por ventanas transparentes, permite el ingreso tamizado de luz natural y la contemplación directa del follaje desde el interior del espacio destinado a la meditación. Cuenta con una gran terraza exterior como espacio de bienvenida y descanso.

La estructura se eleva ligeramente sobre el nivel del jardín, lo que permite que el terreno descienda suavemente mediante taludes que se extienden por debajo del pabellón. Esta operación topográfica integra arquitectura y paisaje, y da lugar a un nivel inferior donde se ubican los baños y cambiadores para los visitantes, manteniéndolos ocultos y dotándolos de un carácter privado desde el nivel del jardín.

La vivienda para huéspedes se resuelve con una cubierta a un agua y retoma la lógica constructiva del pabellón principal, como medio módulo de su estructura. Al igual que este, se eleva ligeramente sobre el nivel del jardín, pero sin generar un nivel inferior,  y se articula con el paisaje a través de terrazas laterales que conectan de forma continua el recorrido exterior con el interior. Cuenta con 2 habitaciones con baño completo cada una y una sala-comedor con kitchenette.

Toda la estructura de los pabellones está resuelta en elementos de madera con cerramientos de bajareque (quincha).

La propuesta incluye el diseño de paisajismo con plantas nativas y mediterráneas de bajo consumo de agua, organizadas según el asoleamiento que reciben en recorridos envolventes, dejando algunos claros centrales en césped como puntos de reunión o picnic.

COLABORADORES: Alexandra Larrea, Karen Galarza, Paloma Gonzales, Luz Vizcarra.

AÑO:

2024

AREA:

290 m2

UBICACIÓN:

San Pedro de Garza García, Monterrey. México

Ing. Estructural:

Ing. Arturo Rosales

Ing. Especialidades:

Ing. Leo Quijano

Consultor Local Paisajismo:

Dornato Mx